AGENCE

PROJETS

METHODOLOGIE

CONTACTS

LIENS

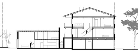
[ LOGEMENT ]

Rénovation chantier + commerce

LIEU : Toulouse (31)
MAITRISE D’OUVRAGE : Privé.
PROGRAMME : 3 logements + 1 commerce
SURFACE : 300 m²
COUT : NC
LIVRAISON : 2012



< RETOUR PROJETS

 

 

 

 

 

 

 

 

 

 

 

 

 

 

 

 

 

 


 

PHOTO CHANTIER >

< RETOUR PROJETS