AGENCE

PROJETS

METHODOLOGIE

CONTACTS

LIENS

[ LOGEMENT ]

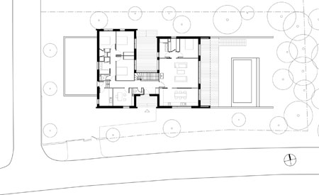
Maison individuelle

LIEU : Toulouse (31)
MAITRISE D’OUVRAGE : Privé
SURFACE : 250 m² SHON
COUT : NC
LIVRAISON : 2015

Maîtrise d'oeuvre :
Architectes : am architectes
Bet structure : Santarossa
HQE : F&H



< RETOUR PROJETS

 

 

 

 

 

 

 

 

 

 

 

 

 

 

 

 

 

 


 

 

< RETOUR PROJETS