[
LOGEMENT ]
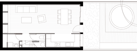
Rénovation d'une maison
LIEU : Toulouse(31)
MAITRISE D’OUVRAGE : Privé.
SURFACE : 110 m²
COUT : 96 000 € HT
LIVRAISON : 2011
<
RETOUR PROJETS
|
|



UUUUétat d'origineUUUUUUUUUUUchantierUUUUUUUUUU Uréalisation


photos : laurence maigret
<
RETOUR PROJETS
|