AGENCE

PROJETS

METHODOLOGIE

CONTACTS

LIENS

[ ACTIVITE ]

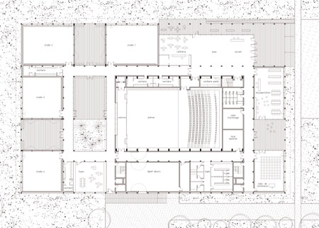
Centre de développement chorégraphique

LIEU : Toulouse
PROGRAMME : Studio de répétition et salle de représentation
SURFACE : 3700 m²
DIPLOME 2006



< RETOUR PROJETS

 

 

 

 

 

 

 

 

 

 

 

 

 

 

 

 

 

 


 

 

< RETOUR PROJETS