AGENCE

PROJETS

METHODOLOGIE

CONTACTS

LIENS

[ ACTIVITE ]

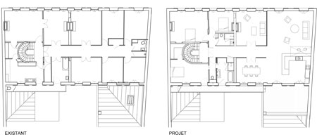
Rénovation d'un appartement

LIEU : Toulouse (31)
MAITRISE D’OUVRAGE : Privé
SURFACE : 200 m² SHON
COUT : NC
LIVRAISON : 2015

Maîtrise d'oeuvre : am architectes
Mission :
Mission de base - hors peinture

 



< RETOUR PROJETS

 

 

 

 

 

 

 

 

 

 

 

 

 

 

 

 

 

 


 

< RETOUR PROJETS